常滑・半田の注文住宅
ガレージのある家
provided by morimasa
仕事も趣味も手を抜かない、こだわりを叶える住まい
家の中にガレージを組み込んだ、車好きを満足させるインダストリアルなデザイン。
仕事も趣味も手を抜かない、こだわりを叶える住まい。
 
ビルトインガレージのある
インダストリアルデザインの家
    ニューヨークのブルックリンは流行と多様性の街。 おしゃれなレストランや倉庫を改造したギャラリーなど味わい深い店が立ち並びます。そんなブルックリンをイメージしたのが「ガレージのある家」。独特の存在感を放つ外観、古き良きアメリカを感じさせるインダストリアルな内観など、日々の暮らしや趣味の時間が楽しくなるようなデザインが魅力です。 ヴィンテージの家具や小物を揃えて自分好みに仕上げてもOK。 コーヒーブレイクもカフェさながらの雰囲気で楽しむことができます。リビングとつながるビルトインガレージでは趣味を楽しんだり、車やバイクの整備も可能。愛車を眺めているだけでも喜びがあふれるような空間です。
 
大人の遊び心を詰め込んだ、
ブルックリン風ヴィンテージハウス
古いものと新しいものとが同居するニューヨークブルックリンをイメージした外観。
内観はインダストリアルな雰囲気に仕上げ、アンティークな家具や小物との相性も抜群です。また、家事のしやすい回遊動線を採用。
デザインだけでなく、生活のしやすさにも重点を置いた間取りです。
 
動線にも配慮した使いやすい
ビルトインガレージ
    ガレージはポーチを経由して玄関に接続しているので、雨に濡れることなく車の乗り降りが可能です。
また、ガレージからはキッチン横の廊下に直接出入りすることができるので、たくさん買い物をしても荷物を楽に運ぶことができます。さらに、広々としたビルトインガレージは子どもの遊び場にもピッタリ。雨の日でも安心して遊ばせることができます。
 
子育て世代に人気の平屋にも対応!
今は子育て世代にも人気の平屋。その平屋タイプもラインナップ!ガレージのある家のコンセプトはそのままに、とっても暮らしやすいと評判のフラットな暮らしも実現します。
 
都市部などの狭小間口にも対応する
コンパクトプラン
    土地間口に制限のある敷地においても、ビルトインガレージの楽しさはそのままに、しっかりフィットするプランも取り揃えております。
 
リビングから愛車をめでるひと時
ビルトインガレーの楽しさは、なんといっても暮らしのワンシーンに愛車が加わること。そんな自分の好き!が実現できます。
こだわりのポイント
- 
ポイント1 外観は趣のある 
 インダストリアルな佇まい長く暮らしていく住まいだからこそ住宅の価値を長期間にわたって保つことができる優れたデザインが必要です。 時とともに増していく「経年美」と、それを構成するための「本質的な美しさ」を大切にし、自分らしい空間をつくり上げることで、いつまでも愛着の持てる理想の住まいが完成します。 
- 
ポイント2 使い方は家族次第 
 2階スタディコーナー2階の廊下部分に位置するスタディコーナーは書斎や仕事の場所として利用できるほか、子どもの勉強場所にもおすすめの多目的スペースです。 程よい距離感を保ちながらも、リビングの吹き抜けを通じて家族の気配を感じられるのもメリットの一つです。 
- 
ポイント3 家事の時短に効果的な 
 回遊動線を採用無駄な動きを減らすことのできる回遊動線を取り入れることによって、家の中をスムーズに行き来できるようになります。たとえば、買い物帰りにガレージから直接キッチンに移動できたり、料理の合間に洗濯をしたりと、家事効率を考えたレイアウトを採用しています。 
VRモデルハウス
VR空間で360度実寸大のモデルハウスを体感していただけます。
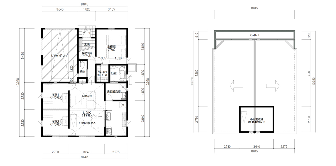
フロアプラン
Arie ラインナップ
- 
 
- 
お気軽にお問い合わせください。 ご来場の場合は、備考欄に来店希望とご記入ください。 
外断熱・エアサイクルの注文住宅の家を建てるなら森政まで。自由設計の注文住宅・リフォーム、リノベーション・外構などを手掛ける工務店です。
【施工エリア】愛知県(常滑市、半田市、阿久比町、東海市、大府市、知多市、東浦町、武豊町、美浜町、南知多町)
※その他の地域も、相談内容により承ります。まずはお気軽にお問い合わせください。 
- 
有限会社 森政 〒479-0043 常滑市古社20番地の7  












































