森政注文住宅参考プラン集 | EW3 Plan/3LDKの詳細です

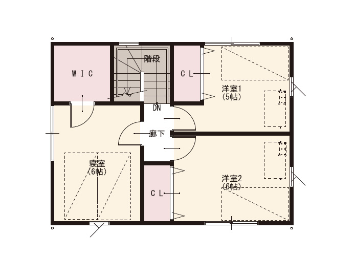
EW3
PLAN
3LDK
延床面積 79.48 ㎡
■1階床面積 39.74 ㎡
■2階床面積 39.74 ㎡
※参考プランですので、森政のリーフシリーズは自由設計です。

お問い合わせ
CONTACT

  • 資料請求
  • モデルハウス見学
  • 買い替え・不動産売却

外断熱・エアサイクルの注文住宅の家を建てるなら森政まで。自由設計の注文住宅・リフォーム、リノベーション・外構などを手掛ける工務店です。

【施工エリア】愛知県(常滑市、半田市、阿久比町、東海市、大府市、知多市、東浦町、武豊町、美浜町、南知多町)
※その他の地域も、相談内容により承ります。まずはお気軽にお問い合わせください。

  • 森政

    有限会社 森政

    〒479-0043 常滑市古社20番地の7

    会社概要

     

    フリーダイヤル

    電話